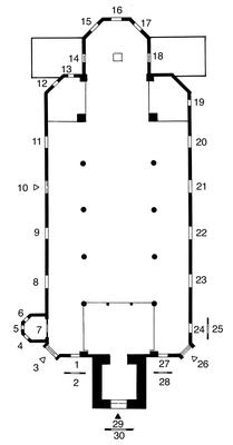
| Grundriss | |
![]() | |
| Außenansicht | |
![]() | |
| Innenansicht | |
![]() | |
| 1,24,27 | |
|
Mond und Stern. Margret Bidinger-Linck, 1953 Fenster im Seitenschiff, Antikglas/Blei |
| 2,28 | |
|
Ornament. Margret Bidinger-Linck, 1953 Fenster im Seitenschiff, Antik-,Kathedralglas/Blei |
| 3,26 | |
|
Ornament. Margret Bidinger-Linck, 1953 Fenster über dem Seiteneingang, Antik-,Kathedralglas/Blei |
| 4-6 | |
|
Ornament. Margret Bidinger-Linck, 1953 Fenster in der Votivkapelle, Antikglas/Blei |
| 7 | |
|
Ornament mit Davidstern. Margret Bidinger-Linck, 1953 Fenster im Seitenschiff, Antikglas/Blei |
| 8 | |
|
St. Barbara. Margret Bidinger-Linck, 1953 Fenster im Seitenschiff, Antikglas/Blei/Schwarzlot |
| 9 | |
|
St. Elisabeth von Thüringen. Margret Bidinger-Linck, 1953 Fenster im Seitenschiff, Antikglas/Blei/Schwarzlot |
| 10 | |
|
Verrat des Judas (?). Margret Bidinger-Linck, 1953 Fenster im Seitenschiff, Antikglas/Blei/Schwarzlot |
| 11 | |
|
Christi Geburt. Margret Bidinger-Linck, 1953 Fenster im Seitenschiff, Antikglas/Blei/Schwarzlot |
| 12 | |
|
Symbole aus der Lauretanischen Litanei: goldenes Haus, Turm Davids, mystische Rose. Margret Bidinger-Linck, 1953 Fenster im Seitenchor, Antikglas/Blei/Schwarzlot |
| 13 | |
|
Symbole aus der Lauretanischen Litanei: Pforte des Himmels, Arche des Bundes, Morgenstern. Margret Bidinger-Linck, 1953 Fenster im Seitenchor, Antikglas/Blei/Schwarzlot |
| 14,18 | |
|
Ornament mit Symbolen des Altarsakraments Ähren, Trauben und Fischen. Künstler unbekannt, um 1935 Fenster im Chor, Antikglas/Blei/Schwarzlot |
| 15 | |
|
St. Nikolaus von Myra. Fa. Binsfeld und Co., 1909 Fenster im Chor, Antikglas/Blei/Schwarzlot/Silbergelb |
| 16 | |
|
Bergpredigt. Fa. Binsfeld und Co., 1909 Fenster im Chor, Antikglas/Blei/Schwarzlot/Silbergelb Signatur: Fr. Binsfeld Trier |
| 17 | |
|
Enthauptung des hl. Matthias. Fa. Binsfeld und Co., 1909 Fenster im Chor, Antikglas/Blei/Schwarzlot/Silbergelb Signatur: Fr. Binsfeld u. Co. Trier 1909 |
| 19 | |
|
Attribute des hl. Joseph: Lilie und Schreinerwerkzeug. Margret Bidinger-Linck, 1953 Fenster im Seitenchor, Antikglas/Blei/Schwarzlot |
| 20 | |
|
Margret Bidinger-Linck, 1953 Fenster im Seitenschiff, Antikglas/Blei/Schwarzlot Signatur: ENTWURF BIDINGER-LINCK 1953 |
| 21 | |
|
Maria und Johannes unter dem Kreuz. Margret Bidinger-Linck, 1953 Fenster im Seitenschiff, Antikglas/Blei/Schwarzlot |
| 22 | |
|
St. Martin teilt seinen Mantel mit dem Bettler. Margret Bidinger-Linck, 1953 Fenster im Seitenschiff, Antikglas/Blei/Schwarzlot |
| 23 | |
|
Die Heilige Familie. Margret Bidinger-Linck, 1953 Fenster im Seitenschiff, Antikglas/Blei/Schwarzlot |
| 25 | |
|
St. Caecilia von Rom. Margret Bidinger-Linck, 1953 Fenster im Seitenschiff, Antikglas/Blei/Schwarzlot |